Projekt und Ausführung // 2015 - 2017
Kunde // privat
Architektur und Bauleitung // Raum B
Photos // Benjamin Hofer //
www.benjaminhofer.ch
Pläne // Raum B // www.raumb.ch
Publikation Wohnrevue 07-19
Projektbeschrieb
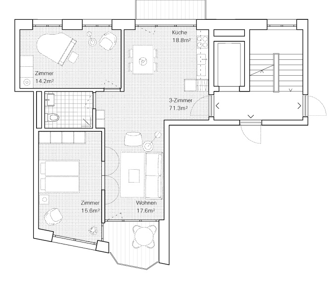
Sich mehr Platz zu verschaffen war die Ausgangsidee zum Umbau des Mehrfamilienhauses aus den 1920er Jahren. Die Besitzerfamilie wollte dazu die beiden Wohnungen im Ober- und Dachgeschoss zu einer grosszügigen Maisonnettewohnung zusammenführen. Die Erdgeschosswohnung sollte danach vermietet werden.
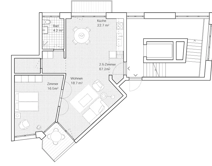
Zu Beginn wurde die wertvolle Bausubstanz einerseits in Bezug auf Struktur und andererseits auf bautechnische Tauglichkeit geprüft. In Bezug auf die Gebäudestruktur konnte festgestellt werden, dass die ehemaligen Dienstbotenzimmer im Dachgeschoss damals viel günstiger und auch weniger reich verziert erbaut worden waren. Zudem wurden die Zimmer in den 1970er Jahren zu einer Dachwohnung zusammengefügt, inklusive Küche und Bad. Es wurde entschieden, diese Bausubstanz und Struktur zugunsten eines grosszügigen Wohnraumes mit Küche im Dachgeschoss zu eliminieren. Der unbeheizte, darüber liegende Estrich sollte hingegen als solcher erhalten bleiben, wenn auch mit neu gedämmtem und eingedecktem Walmdach.
Die südliche Lukarne im Dachgeschoss wurde in eine gedeckte, dem Wohnraum zugeordnete Terrasse umgebaut. Dazu mussten die bestehenden Zierfriese sorgfältig entfernt, die Dachkonstruktion neu aufgebaut und die Zierfriese in restaurierter Version wieder angebracht werden. Diese aufwändige Massnahme bewirkt, dass die mit einer raumhaltigen Konstruktion begrenzte Terrasse von aussen nach wie vor wie eine Lukarne mit altem Fries wirkt.
Im Obergeschoss wurde die Raumstruktur in den Zimmern mehr oder weniger erhalten. Da auch diese Wohnung in den 1970er Jahren umgebaut worden war, musste jedoch die Raumaufteilung an einzelnen Stellen wieder in Richtung Originalzustand zurückkorrigiert werden. Zudem wurden die abgehängten Täferdecken der 1970er Jahre entfernt, wodurch die Stukkaturen wieder in Erscheinung traten. Der grösste Eingriff fand in diesem Geschoss in den Bädern und der ehemaligen Küche statt, welche neu zu einem grosszügigen Badezimmer umgebaut wurde.
Die ehemalige Treppe zur obersten Wohnung musste zu einer Wohnungsinternen Verbindungstreppe zwischen Ober- und Dachgeschoss umgebaut werden, was vor allem in Hinsicht auf Brandschutz und Schallschutz in Anbetracht des spärlich vorhandenen Platzes eine Herausforderung darstellte. Die Bauherrschaft wünschte sich einen grundsätzlichen Erhalt der Treppe inklusive gedrechseltem Geländer.
Eine weitere knifflige Aufgabe stellte der Schallschutz zwischen den Geschossen dar. Die Böden wurden dazu bis zur Balkenlage zurückgebaut. Die Balken wurden anschliessend durch Holzzangen verstärkt und die Hohlräume neu gedämmt. Als Schalltrennung wurden Filzstreifen auf die Balken verlegt, danach der Boden neu mit Dreischichtplatten und Fermacell-Estrichelementen verlegt. Der neue Bodenaufbau stellt ein austariertes Geleichgewicht zwischen möglichst hohem Schallschutz und einer möglichst geringen Veränderung der Bodenhöhe dar. Die Bodenhöhe sollte nämlich minimal angehoben werden, um die Raumproportionen, Fenster- und Türhöhen nur minimal zu verändern. Dennoch mussten die neuen Böden im Bereich der bestehenden Treppenanlage dreidimensional schräg auf die Treppenstufen hingeführt werden, um keine Stolperfalle am Ende der Treppe zu verursachen.
Projektbeschrieb MFH Zürich PDF